Механизированные комбинированные для обработки труб ППТ 3Н

Описание

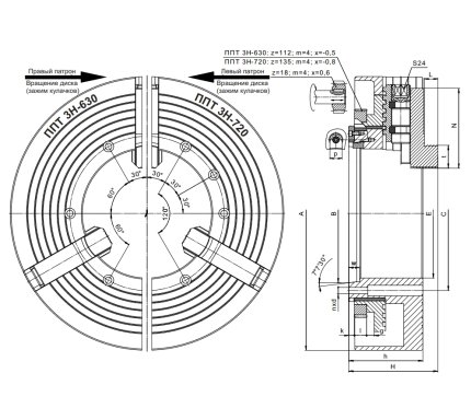
Патроны токарные механизированные комбинированные трехкулачковые предназначены для закрепления труб, цилиндрических и эксцентриковых деталей, неконцентрического зажима заготовок сложной формы, обеспечиваемой индивидуальной выверкой кулачков и прутковых материалов на токарных трубообрабатывающих станках.
Патроны имеют винты для настройки на обработку заготовок различной формы сечения. На шпиндельную бабку устанавливается левый и правый патроны.
Патроны работают от механизированного привода, входящего в конструкцию станка, передающего крутящий момент на зубчатое колесо, расположенное на заднем торце патрона.
Класс точности балансировки
G 6,3 ГОСТ ИСО 1940-1.
Патроны ППТ 3Н-630.205 устанавливаются на станок РТ783.
Патроны ППТ 3Н-720.320 устанавливаются на станок 1А983, СА983, при условии доработки фланцевой части (гайка) шпинделя под крепежные отверстия патрона.
Патроны ППТ 3Н-720.340 устанавливаются на станок СА984, при условии доработки фланцевой части (гайки) шпинделя под крепежные отверстия патрона.
 
Примеры заказа:
Патрон токарный механизированный комбинированный трехкулачковый диаметром 630 мм с проходным отверстием 205 мм, левый – ППТ 3Н-630.205М Лев.
Патрон токарный механизированный комбинированный трехкулачковый диаметром 720 мм с проходным отверстием 340 мм, правый – ППТ 3Н-720.340М Пр.

Размеры и технические характеристики

Модель / Крутящий момент (ключ), Н·м Суммарная сила зажима в кулачках (ключ), кН Крутящий момент (ведущая шестерня привода), Н·м Суммарная сила зажима в кулачках (ведущая шестерня привода), кН Допустимая частота вращения патрона, мин -1 Диапазон диаметров зажимаемых поверхностей, мм Масса патрона, кг
ППТ 3Н-630.205М / 250 75 42 80 630 48-205 315
ППТ 3Н-720.320М / 250 75 42 250 450 70-320 315
ППТ 3Н-720.340М / 250 75 42 250 450 70-340 295

Размеры и технические характеристики

Наименование параметров Модель патрона
ППТ 3Н-630.205М ППТ 3Н-720.320М ППТ 3Н-720.340М
A мм Ø630 Ø720 Ø720
B мм Ø285,775 Ø345 Ø365
C мм Ø310 Ø400 Ø406
E мм Ø205 Ø320 Ø340
H мм 235,5 235,5 235,5
h мм 195 195 195
w мм 29 29 29
nxd мм 6хØ17 9хØ17 9хØ17
L мм 35,5 35,5 35,5
N мм 210 210 200
p мм 32 32 32
k мм 15 15 15
l мм 32 32 32
g мм 20 20 20